Planung, so einzigartig wie dein Garten.

Individuelle Konzepte und nachhaltige Lösungen für Gärten, Grünflächen & Grabstellen im Raum Oldenburg.

Planung, so einzigartig wie dein Garten.

Individuelle Konzepte und nachhaltige Lösungen für Gärten, Grünflächen & Grabstellen im Raum Oldenburg.

Dein Garten kann mehr, als du denkst.

Ich zeige dir, wie du jeden Quadratmeter sinnvoll nutzt – für Ruhe, Schönheit und Naturverbundenheit. Mit meinem Wissen und deiner Begeisterung entsteht ein Garten, den du verstehst & liebst.

Bereit für dein Projekt.

Ich höre zu, schaue hin und entwickle mit dir gemeinsam Ideen, die wirklich zu dir passen.

Ich bin im Raum Oldenburg und online für Euch da.

Anne Weingarten Gartendesign & Planung

Beispiele ansehen

Leistungen

Dein Garten überfordert dich & du weißt nicht, wo du anfangen sollst?

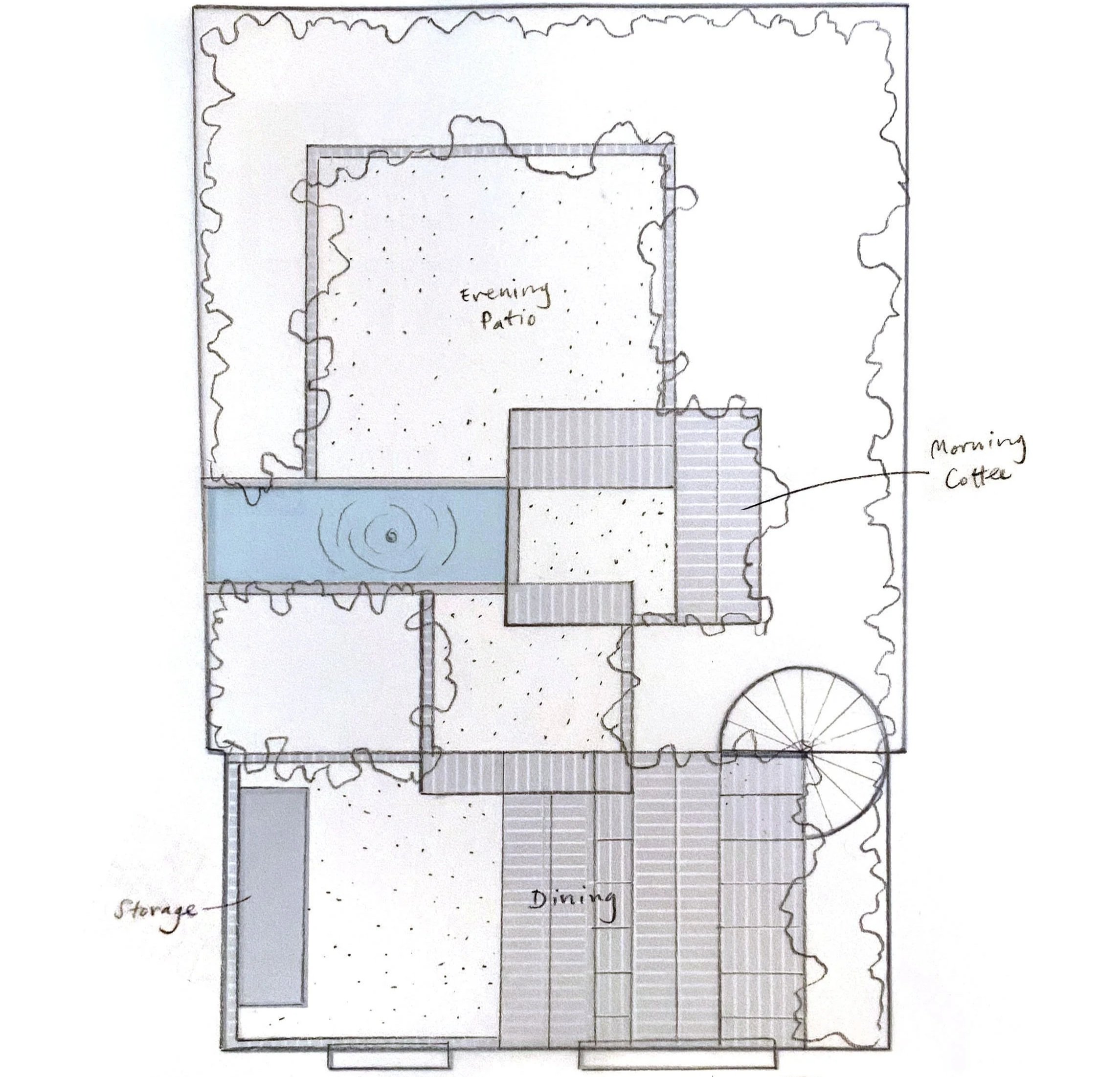
Planung für ganze Gärten & einzelne Bereiche

Ich helfe dir, aus vagen Vorstellungen ein klares Konzept zu entwickeln – mit frischen Ideen, Skizzen und praxisnahen Lösungen.
So wird aus Planungsstress ein Prozess, der inspiriert und Spaß macht. Zusammen kreieren wir einen Garten, der wirklich zu dir und deinem Leben passt.

Du hast eine Idee, aber traust dich nicht loszulegen?

Beratung & DIY Support

Ich unterstütze dich dabei, deine Vorstellungen zu konkretisieren und in die Umsetzung zu bringen. Mit meiner Erfahrung in Gartendesign und Pflanzplanung zeige ich dir, was in deinem Garten möglich ist und packe auf Wunsch direkt mit an.

Dein Garten wird kaum genutzt & du spürst, da geht mehr?

Gartenplanung und Visualisierung

Oft liegt es nicht am Platz, sondern am fehlenden Konzept. Ich zeige dir, wie du ungenutzte Ecken in lebendige Lieblingsorte verwandelst – durchdacht, ästhetisch und passend zu deinen Bedürfnissen.

Erzähl mir von deinem Garten

Ich höre zu, schaue hin und entwickle mit dir gemeinsam Ideen, die wirklich zu dir passen.


Vom ersten Gespräch bis zur fertigen Planung – Schritt für Schritt wächst deine individuelle Gartenplanung.

Der Prozess

Du stellst eine Anfrage, am einfachsten gleich hier über die Website. Das dauert max. 2 Minuten.

01

Anfrage

Dann klären wir telefonisch die wichtigsten Eckpunkte zu deinem Projekt. Bei Bedarf, treffen wir uns vor Ort, um uns ein Bild der Begebenheiten zu machen und ganz persönlich über all deine Wünsche zu sprechen. Die Erstberatung ist für dich immer kostenfrei & unverbindlich.

02

Kennenlernen

Nach dem Ersttermin sende ich dir kurze Zeit später ein verbindliches Komplettpreis-Angebot für dein Projekt zu. Wenn alles passt geht’s los!

03

Angebot

Ich kombinieren deine Wünsche und Anforderungen und kreieren ein wundervolles Designkonzept für deinen Garten. Damit du dir auch wirklich alles genau vorstellen kannst, fertige ich Skizzen zur Ansicht und Pflanzpläne an.

04

Konzept & Visualisierung

Umsetzung

05

Auf Wunsch übernehme ich im Full-Service-Angebot sowohl den Einkauf von Pflanzen als auch die Pflanzarbeiten vor Ort. Wer möchte, kann sich dabei aktiv beteiligen. Für die anschließende Pflege stehen flexible Optionen zur Verfügung, abgestimmt auf deinen individuellen Bedarf.

Fragen & Antworten

  • Studio Weingarten bietet individuelle Gartenplanung, Pflanzkonzepte und Grabgestaltung im Raum Oldenburg und Umgebung. Von der ersten Beratung über detaillierte Entwürfe bis hin zur Begleitung der Umsetzung entstehen durchdachte, ästhetische Konzepte für private Gärten und hochwertige Außenflächen.

    Je nach Bedarf können Kunden nach der Planung entweder selbst aktiv werden oder die gesamte Umsetzung über einen Ausführungspartner aus dem Garten-Landschaftsbau übernehmen lassen.

    Wenn du lieber selbst anpackst, kannst du mich als GartenCoach buchen. So wird dein Projekte in Eigenleistung fachlich begleitet: mit praxisnaher Beratung und klaren Schritten für die Umsetzung unterstütze ich direkt vor Ort.

  • Ich arbeite im Raum Oldenburg sowie im Umkreis von etwa 50 Kilometern – unter anderem im Ammerland, in Bad Zwischenahn, im Landkreis Oldenburg und angrenzenden Regionen.

    Für Projekte über diesen Radius hinaus fällt eine Anfahrtspauschale an – eine Zusammenarbeit ist dennoch jederzeit möglich. Darüber hinaus biete ich professionelle Online-Planungen an. Dank meines ausgeprägten räumlichen Vorstellungsvermögens und meiner Erfahrung im Bereich Visualisierung entwickle ich auch auf Grundlage von Fotos, Plänen und Maßangaben präzise und stimmige Konzepte. So entstehen hochwertige Entwürfe – flexibel, effizient und ortsunabhängig.

  • 1. Erstgespräch vor Ort
    Bei einem persönlichen Termin im Raum Oldenburg klären wir Wünsche, Budget, Rahmenbedingungen und den Charakter des Ortes. So entsteht ein gemeinsames Verständnis für Ziel und Richtung des Projekts.

    2. Konzept, Entwurf & Visualisierung
    Auf Basis der Bestandsaufnahme entwickle ich ein individuelles Gestaltungskonzept. Du erhältst detaillierte Pläne, Pflanzkonzepte sowie – je nach Projekt – Ansichten oder Visualisierungen, die das zukünftige Gesamtbild klar und greifbar machen.

    3. Feinabstimmung
    Gemeinsam besprechen wir Details und passen das Konzept bei Bedarf an, bis Gestaltung, Funktion und Atmosphäre stimmig zusammenwirken.

    4. Umsetzung
    Kleinere Projekte begleite ich persönlich, insbesondere bei DIY-orientierten Vorhaben. Bei größeren Bauprojekten arbeite ich mit ausgewählten Garten- und Landschaftsbau-Betrieben zusammen, übernehme die gestalterische Leitung und begleite die Umsetzung mit Qualitätskontrolle.

    5. Pflege & Weiterentwicklung (optional)
    Auf Wunsch unterstütze ich auch nach der Fertigstellung mit Pflegekonzepten oder saisonaler Beratung.

  • Die Kosten richten sich nach Größe, Umfang und Detailtiefe des Projekts. Hier erfährst du dazu mehr. Nach einem Erstgespräch erhältst du ein transparentes Angebot.

  • Ja. Mit dem GartenCoach-Angebot begleite ich Projekte in Eigenleistung fachlich und praktisch. Du erhältst klare Pflanzkonzepte, strukturierte Umsetzungsschritte und professionelle Unterstützung direkt vor Ort.

  • Ja. Eine Gartenberatung eignet sich ideal zur ersten Orientierung oder als fundierte Entscheidungsgrundlage für weitere Schritte. Die Abrechnung erfolgt transparent nach einem Stundensatz von 75 Euro pro Stunde. In der Regel lassen sich in ein bis zwei Stunden bereits klare Impulse, konkrete Empfehlungen und umsetzbare Lösungsansätze entwickeln.

  • Ja. Ich gestalte Grabstätten individuell und würdevoll – von der Planung über den Pflanzeneinkauf bis zur vollständigen Umsetzung vor Ort. Auch saisonale Bepflanzungen und Pflegekonzepte sind möglich. Erfahre hier mehr dazu.

  • Eine Planung ist ganzjährig möglich. Besonders sinnvoll ist sie in den Herbst- und Wintermonaten, damit im Frühjahr direkt mit der Umsetzung begonnen werden kann.

Was meine KundInnen sagen

„Unsere Wünsche und Vorstellungen wurden wunderbar aufgenommen und stimmig in das neue Konzept integriert. Ihre Ideen haben uns geholfen, unseren Garten ganz neu zu sehen. Vielen Dank!“

Sarah H. – Bad Zwischenahn

„Wir dachten immer, unser Garten sei zu klein, um etwas Besonderes daraus zu machen. Doch die Ideen und Skizzen haben uns völlig überrascht. Jetzt fühlt sich der Platz größer an, und jeder Bereich hat eine Funktion – einfach genial!“

Max A. – Oldenburg

„Ich liebe Pflanzen, aber nach meinem Umzug wusste ich nicht, wo ich anfangen sollte. Studio Weingarten hat mir geholfen, meinem neuen Garten Struktur zu geben. Jetzt kann ich ihn Schritt für Schritt so gestalten, dass er wieder ganz zu mir passt.“

Sabine T. – Friedrichsfehn